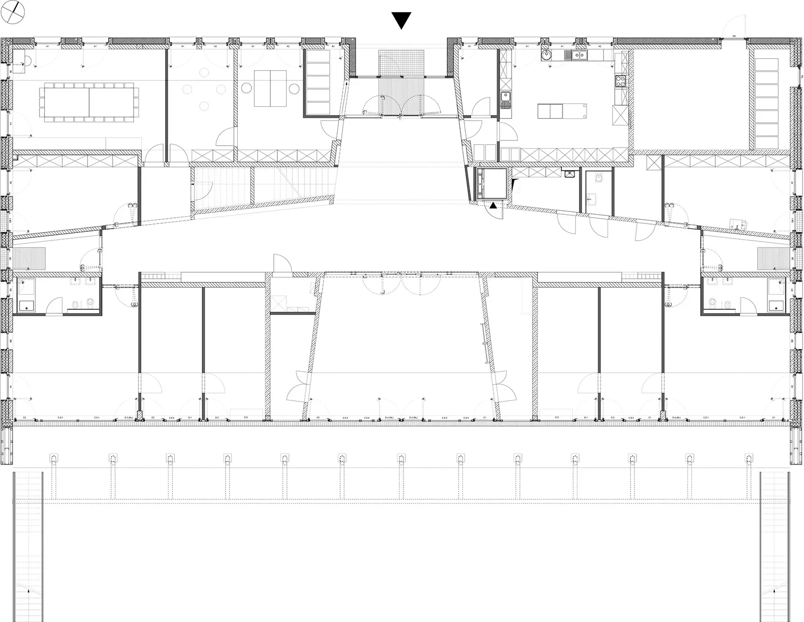
Der Neubau des Kinderzentrums ersetzt ein Provisorium aus den 60er Jahren. Das Gebäude ist konsequent als Passivhaus konzipiert und stellt sich selbstbewusst und frisch in die Umgebung. Nach Süden ausgerichtet, lichtdurchflutet und mit Spielbalkon ausgestattet, bildet das Haus mit seiner Tribühnenarchitektur einen sicheren, freundlichen Halt für seine kleinen und großen Benutzer. Die fünfzügige Einrichtung beherbergt Kindergarten, U3 und Hortgruppen. Der zweigeschossige Bau ist in Massivbauweise ohne Unterkellerung errichtet. Die Gruppenräume orientieren sich alle zum vorgelagerten Außenbereich und bieten hochtransparente Innenräume. Im EG befindet sich an zentraler Stelle ein Mehrzweckraum, im Norden die Funktionsräume. Direkt an den Gruppenräumen angrenzend befindet sich eine Bad- und WC-Spange, welche sowohl im Erdgeschoss als auch im 1. Obergeschoss direkt übereinander liegt, was den Entwurf zu einem TGA-optimierten und somit sehr wirtschaftlichen Gebäude werden lässt. Die Fassade ist teilweise als hinterlüftete Plattenfassade, teilweise als WDVS-Fassade ausgeführt.
Der Neubau des Kinderzentrums ersetzt ein Provisorium aus den 60er Jahren. Das Gebäude ist konsequent als Passivhaus konzipiert und stellt sich selbstbewusst und frisch in die Umgebung. Nach Süden ausgerichtet, lichtdurchflutet und mit Spielbalkon ausgestattet, bildet das Haus mit seiner Tribühnenarchitektur einen sicheren, freundlichen Halt für seine kleinen und großen Benutzer. Die fünfzügige Einrichtung beherbergt Kindergarten, U3 und Hortgruppen. Der zweigeschossige Bau ist in Massivbauweise ohne Unterkellerung errichtet. Die Gruppenräume orientieren sich alle zum vorgelagerten Außenbereich und bieten hochtransparente Innenräume. Im EG befindet sich an zentraler Stelle ein Mehrzweckraum, im Norden die Funktionsräume. Direkt an den Gruppenräumen angrenzend befindet sich eine Bad- und WC-Spange, welche sowohl im Erdgeschoss als auch im 1. Obergeschoss direkt übereinander liegt, was den Entwurf zu einem TGA-optimierten und somit sehr wirtschaftlichen Gebäude werden lässt. Die Fassade ist teilweise als hinterlüftete Plattenfassade, teilweise als WDVS-Fassade ausgeführt.