© 2025 Staniek+ architekten + ingenieure. Alle Rechte vorbehalten Impressum Datenschutz
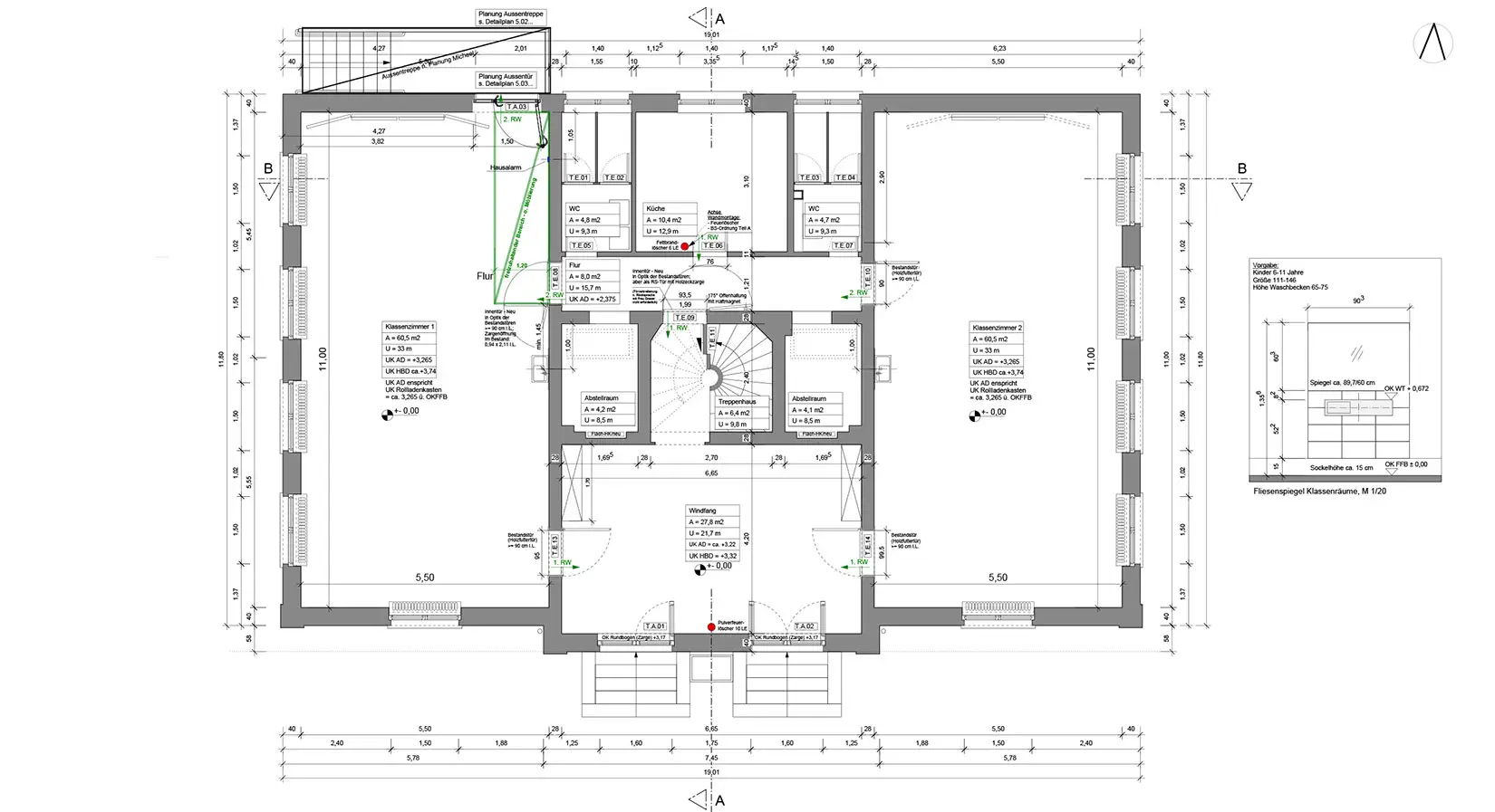
Im direkten Umfeld einer bestehenden Schule wurde ein denkmalgeschütztes Gebäude in einen Hort umgewandelt. Die Planung erfolgte, neben der Auseinandersetzung mit der Denkmalpflege (Treppengeländer, Farbgebung, Eingriffe in die Fassade) unter zeitlich engen Rahmenbedingungen und Kostenoptimierungen. Wie immer stehen bei einer Transformation von Bestandsbauten in eine neue Nutzung aktuelle Vorschriften und Auflagen im Mittelpunkt.
Im direkten Umfeld einer bestehenden Schule wurde ein denkmalgeschütztes Gebäude in einen Hort umgewandelt. Die Planung erfolgte, neben der Auseinandersetzung mit der Denkmalpflege (Treppengeländer, Farbgebung, Eingriffe in die Fassade) unter zeitlich engen Rahmenbedingungen und Kostenoptimierungen. Wie immer stehen bei einer Transformation von Bestandsbauten in eine neue Nutzung aktuelle Vorschriften und Auflagen im Mittelpunkt.